浙江大学医学院附属邵逸夫医院钱塘院区将扩建
浏览量
全文180个字
阅读约需 分钟
都市快报讯 近日,杭州市钱塘区浙江大学医学院附属邵逸夫医院质子治疗中心暨科研转化大楼设计方案正在公示示中。
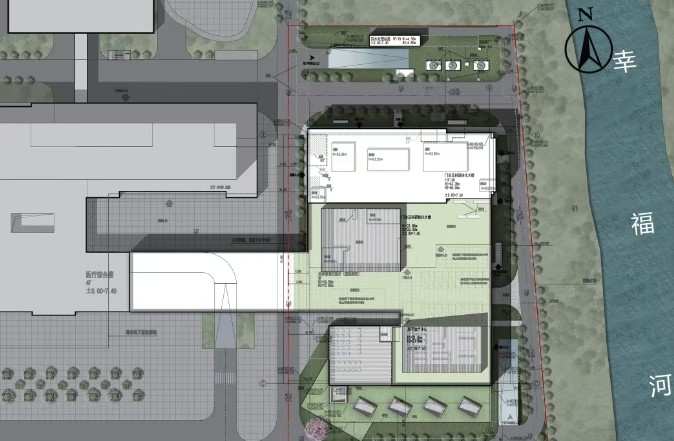
浙江大学医学院附属邵逸夫医院计划在如图位置建设浙江大学医学院附属邵逸夫医院质子治疗中心暨科研转化大楼建设工程。

此次公示的为批复的总平面图主要立、剖面图及总体鸟瞰图,其中可以看到扩建项目主要涵盖医院门诊、质子中心及放疗中心以及车库等相关配套用房。

鸟瞰图

平面图