总体量超33万方!主城又一个TOD项目亮相,会有一条网红商业街
每日商报讯 曾经诞生多个“万人摇”红盘的三墩北,终于又有新项目要亮相了。
7月29日,三墩北出让了1宗大体量商住用地,就是地铁4号线莲池路的TOD上盖地块,被华润联手杭州地铁和杭地发以底价拿下,折合楼面价13092元/㎡。

(华润莲池路项目区位图)
经过近4个月的等待,华润莲池路项目终于在上周公示了规划建设方案,主城区又迎来一个大型TOD产品,非常值得期待。
华润莲池路TOD项目,具体位置在莲池路与油车桥港交汇的东南面,北面就是紫璋台,北面和东面都有河道,小环境还不错。不过,西面距离绕城高速不到200米,不可避免会受到一定的噪音影响。
整个项目总用地面积97405㎡,容积率2.3,总建筑面积331739㎡,地上计容面积224031㎡,地上不计容面积5023㎡,建筑密度31%,绿地率35%。
从设计图来看,这个项目分为3个部分打造,中间用地铁出入口所在的商街隔开,打造了高层、小高层、商业、写字楼四种业态。

(华润莲池路项目设计图)
高层组团位于地块的东北面,体量最大,由16幢19-26F的住宅组成,采用围合式排布,中间形成了两个比较大的景观空间,其中南面的集中绿地近2000方,而北面的面积更大,最大楼间距超过80米,打造了景观水系。
另外,在东面的园林中,打造了下沉式庭院,西面则是1000多方的公共体育设施场地。全部楼幢由开放式风雨连廊连接,体育活动室、全民健身中心等配套则集中在南面的3F建筑里。

(高层组团设计图)
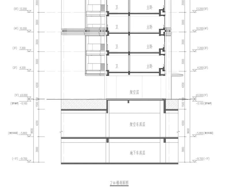
从剖面立面图来看,高层架空层层高4.2米,标准层层高3米,并不算很突出。不过,加上5.7米的架空平台,二楼向上抬升近10米,采光和视野都会不错。

(高层剖面图)
小高层组团位于地块西南面,由7幢8F-10F的小高层组成,体量稍小,因此园区配置也比较一般,以集中绿地为主,同样有风雨连廊连通。

(小高层组团设计图)
华润莲池路TOD项目的另一个亮点,是它的商业部分,在两个住宅组团之间,打造了一条商业街,由1F-3F的商铺组成,中间还设置了下沉广场,并且有2个地铁出入口直达。
这很容易让人联想到亚奥万象天地的“里巷”街区,同样由华润打造,凭借“重体验、轻零售、多社交”的风格成为热门商业街。莲池路项目的这条街区,同样有成为网红的潜力。

(莲池路项目商业街效果图)
据华润此前对外释放的信息,莲池路TOD项目定位改善,住宅主力面积110-225㎡,预计在12月份开放城市展厅。
价格方面暂时还没有确定,置业顾问表示会参考周边新房。目前,项目南面在售有保利·西源赋,精装均价在37000元/㎡左右。

(华润莲池路项目效果图)