拿地仅10天,“美学专家”的新作品出炉,大面积水系非常诱人

每日商报
浏览量

每日商报讯 9月16日,在“金九”杭州唯一的一场土地出让会上,兴耀以79282万元的总价,9773元/㎡的楼面价,拿下了1宗位于下沙元成单元的宅地,溢价率1.3%。

这是兴耀在整个钱塘区落子的第15个项目,其在下沙的版图也进一步往北扩张,从金沙湖、大学城延伸到了德胜快速路以北的元成单元。

(兴耀元成项目设计图)

拿地仅仅10天,兴耀元成项目就火速规划公示,作为业内公认的“美学专家”,这次兴耀又为下沙带来了一个高颜值项目,继续为年轻人打造好房子。

兴耀元成项目位于金乔街与海达北路交界处,临近医药港,占地面积38629㎡,容积率2.1,总建筑面积128778㎡,其中地上建筑面积83278㎡,地下建筑面积45500㎡,绿地率35%,建筑密度22%。

整个项目打造了14幢14—26F的高层住宅,按照南低北高设计,总共三列,在小区中间围合出两个非常大的园林空间,最大楼间距超过60米。

从设计图来看,这个小区地面布置了大量的景观水系。南面主入口的小区门厅外,就做了大面积的对称水景,穿过大门后,又是下沉庭院和景观水系,整体连贯铺陈,仿佛湖中小岛。

(景观水系非常多)

在小区北面的花园里,还有一个景观水系,并紧挨着集中绿地。此外,小区里还有多处室外活动场地。

所有楼幢底层全部架空,架空层层高4.2米,标准层层高3米。架空层采用了白色石材搭配浅香槟金铝板的设计。上面则是香槟金铝板、灰色铝板搭配大面积玻璃,并且是公建化封闭式阳台设计,从效果图看上去,整体非常通透,质感十足。

(兴耀元成项目立面图)

目前,元成单元仅有1个在售项目,即兴耀项目东面的潮映望月府,精装限价27500元/㎡。接下来,随着兴耀优质新品的入市,这里的房价大概率也会来到“3字头”。

(兴耀元成项目效果图)

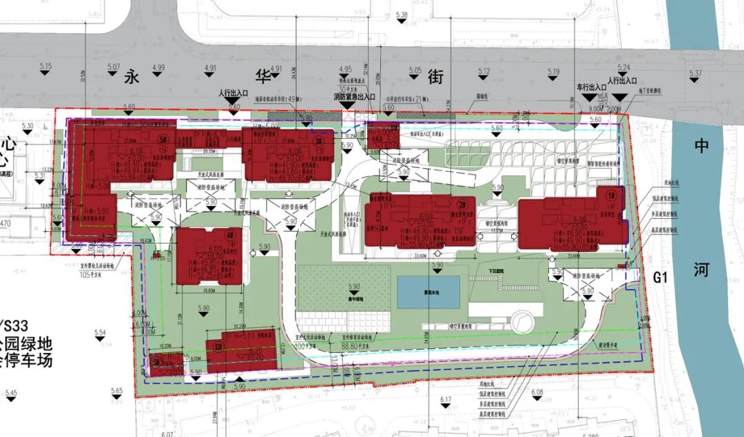
与此同时,西房在7月22日拿下的华丰低密宅地,也公示了规划方案。

这个项目,位于衣锦路与永华街交界处,南面紧邻桦枫居,东面则贴近华中河,成交楼面价15295元/㎡。

(西房华丰项目设计图)

整个项目占地14157㎡,容积率只有1.7,总建筑面积37450㎡,建筑密度22%,绿地率35%,建筑高度49.4米。

根据规划,这个项目打造了5幢13—15F的小高层住宅,基本是东西一列排布,南面都留出来做了景观配套,南向采光会非常出色。

尽管体量不大,但是该有的最新配套基本都有,包括景观水池、下沉式庭院、集中绿地、室外文化场地、室外体育活动场地、健身慢步道、风雨连廊、景观构架等。值得一提的是,北面人行出入口还做了大面积的镂空景观架构,非常有气势。

(西房华丰项目立面图)

5幢楼底层全部架空或局部架空,架空层高4.6米,标准层层高3.05米,属于偏改善的尺度。从效果图来看,外立面采用了大面积玻璃搭配香槟色和浅色金属线条的设计,轻奢感很足。

(西房华丰项目效果图)